Front Elevation
Rear Elevation
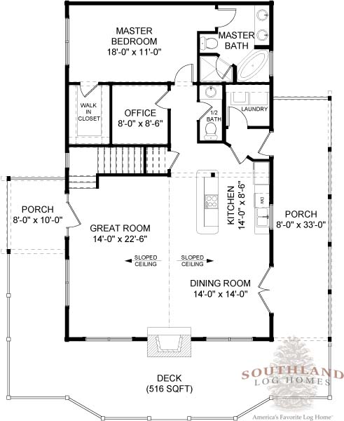
First Floor
Second Floor

Home Specifications

Square Feet: 1932

First Floor: 1324

Bedrooms: 2

Second Floor: 608

Bathrooms: 2.5

Width: 44'

Stories: 2

Depth: 46'

Request Pricing or Have a Question: