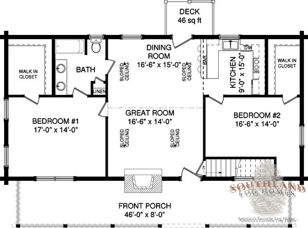
View Larger Image Download/Print Plan DetailsFront Elevation Rear Elevation First Floor Home SpecificationsSquare Feet: 1248First Floor: 1248Bedrooms: 2Second Floor: 0Bathrooms: 1Width: 46'Stories: 1Depth: 24'Request Pricing or Have a Question:Share This Story, Choose Your Platform!FacebookTwitterLinkedInRedditTumblrPinterestEmail