Front Elevation
Rear Elevation
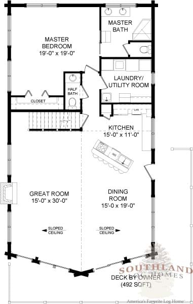
First Floor
Second Floor

Home Specifications

Square Feet: 2212

First Floor: 1672

Bedrooms: 3

Second Floor: 540

Bathrooms: 3.5

Width: 30'

Stories: 2

Depth: 56'

Request Pricing or Have a Question: