Front Elevation
Rear Elevation
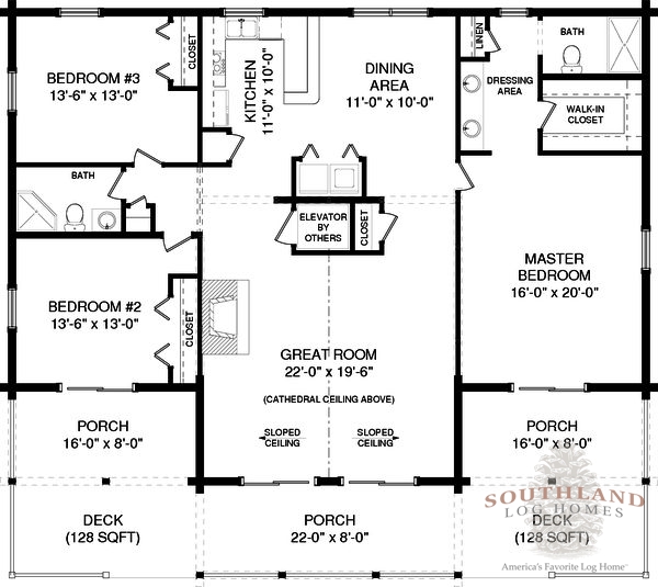
First Floor

Home Specifications

Square Feet: 1963

First Floor: 1963

Bedrooms: 2

Second Floor: 0

Bathrooms: 3

Width: 54'

Stories: 1

Depth: 48'

Request Pricing or Have a Question: