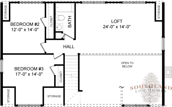
View Larger Image Download/Print Plan DetailsFront Elevation Rear Elevation First Floor Second Floor Home SpecificationsSquare Feet: 2263First Floor: 1447Bedrooms: 3Second Floor: 816Bathrooms: 2.5Width: 52'-2"Stories: 2Depth: 48'Request Pricing or Have a Question:Share This Story, Choose Your Platform!FacebookTwitterLinkedInRedditTumblrPinterestEmail